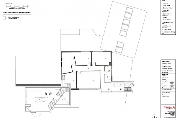
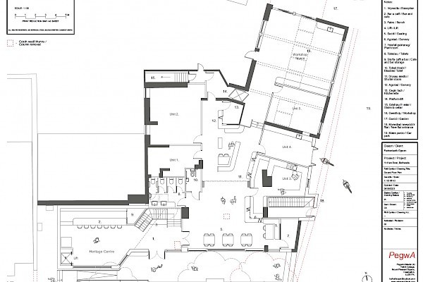
Mae Partneriaeth Ogwen yn falch o allu cadarnhau eu bod wedi prynu hen adeilad y Spar ar Stryd Fawr Bethesda i’w ddatblygu fel canolfan grefftau, bwyty a chanolfan dreftadaeth newydd i Ddyffryn Ogwen. Yr Hen Bost fydd enw’r ganolfan newydd a diolch i’r Prifardd Ieuan Wyn am ei gymorth wrth ddewis enw newydd a theilwng i’r safle. Ar ôl gwaith caled gan staff y Bartneriaeth ar geisiadau grant sylweddol llwyddwyd i brynu’r adeilad. Mae’r cyllidwyr yn cynnwys Cronfa Trawsnewid Trefi Llywodraeth Cymru a weinyddir gan Gyngor Gwynedd a Chronfa Cymunedol Eryri ac hefyd buddsoddiad gan Bartneriaeth Ogwen ei hun. Ers prynu’r adeilad, mae’r Bartneriaeth hefyd wedi llwyddo gyda chais i Gronfa Cymunedau Mentrus Llywodraeth y DU i ariannu costau pensaerniol ar gyfer y safle. Comisiynwyd Penseiri PEGWA i ddatblygu dyluniadau ar gyfer datblygu’r eiddo. Mae Elinor Gray Williams y prif bensaer yn arbenigwraig ar bensaerniaeth cadwriaethol a chynaladwy a bwrieir datblygu’r safle i safonau carbon niwtral a chreu adeilad sy’n adlewyrchu treftadaeth chwarelyddol yr ardal.
Bydd gwaith adeiladu yn dechrau ar Yr Hen Bost ar Stryd Fawr Bethesda erbyn diwedd mis Ionawr, 2025.
Cyllidir y datblygiad trwy gronfa Ffyniant Bro Llywodraeth San Steffan a chronfa Economi Gylchol Llywodraeth Cymru.
Manylion Cyswllt
| Enw Cyswllt | Yr Hen Bost |
| Cyfeiriad | Yr Hen Bost, Stryd Fawr, Bethesda, LL57 3AR |
| E-bost | E-bost |
| Gwefan | Gweld |
| Lawrlwythiadau | Cynllun - to [maint: 553.8 kB] Cynllun - llawr 2 o top [maint: 548.7 kB] Cynllun - lleoliad [maint: 564.4 kB] Cynllun - lleoliad2 [maint: 409.9 kB] Llawr gwaelod [maint: 723.1 kB] Heritage Impact Assessment [maint: 1.0 MB] |
Fideo
Map Lleoliad
Oriel



Tudalen wedi ei diweddaru: 17/07/25